
天津人在杭州,以細致取勝的loft時尚家,速速開啟愜意時光!
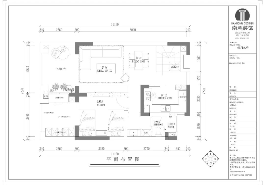
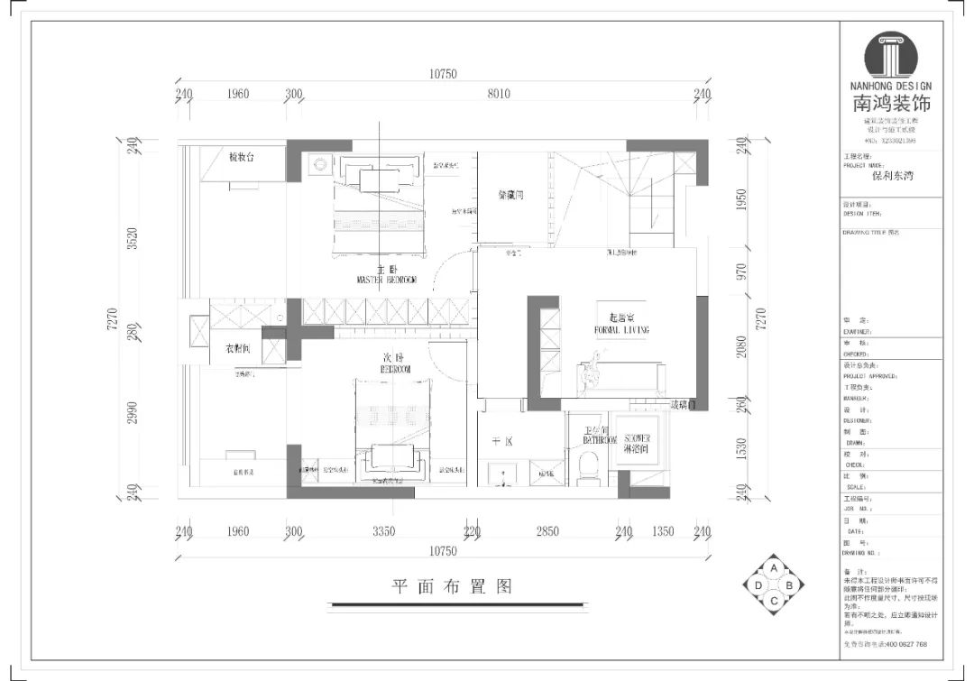
項目信息 / 地址:保利東灣 城市:中國 杭州 戶型:Loft 面積:150㎡ 風格:現代簡約 設計施工:浙江南鴻裝飾 屋主是位天津女士,有著在北方人中常見的熱情直爽的性格,但在生活中又有著極細致的一面。她提出的要求是風格簡潔時尚,不能太浮夸,家里的每個空間都能得到充分利用,并且對儲物量也有一定需求。 家里的成員有:業主自己,她的兒子,兩位老人,還有一只狗狗。 老人的腿腳不太方便,因此設計師將臥室安排在了一樓。長輩房內的家具都是依照他們原先在天津的舊家的家具尺寸一比一還原打造,以幫助兩位老人盡快適應杭州的新生活,避免各種不便。樓梯增加扶手,保證他們日常走動安全。 設計上我們擯棄了復雜的造型,盡可能讓硬裝簡單清爽,用少量的材質、色彩和裝飾元素,來打造寧靜、純粹、無雜質的居家空間。整體色系為原木色、奶茶色和白色搭配,給人干凈明朗又純凈舒緩的感受。 居室內硬裝的材質基本都是淺色原木飾面,踢腳線、房門、柜門、樓梯踏步等我們也都統一了顏色和材質,還有隱形拉手的設計,讓空間看上去非常完整。全屋的燈光布置也相當全面,除頂部無主燈設計,背景墻、柜子、踏步等都有隱藏光源的存在,為空間營造出溫馨氣氛。 設計師有話說 / 這個項目由于前期業主在出租,后期樓板要現澆,導致整個施工過程比較漫長,也因此讓我和業主阿姨接觸了更長的時間。阿姨和我非常投緣,現在項目全部完工了,我們也還是會經常聯系,過節的時候阿姨會打電話叫我去吃飯,怕我一個人在杭州孤單。能遇到這樣的客戶讓我由衷地感到開心,也是我的一種榮幸,大概也是我這么熱愛做設計的原因之一吧~ 本案的亮點我覺得就在“穩中求勝”這四個字。空間整體并不會給人很張揚很突出的感覺,但你細細品味,就能發現每塊區域中都有那么一點小小的亮色,這些亮色或許就是我們平凡人在平凡生活中收獲的感動、幸福的一種小小具現。 【戶型改造分析】 ▲一層原始戶型圖 ▲二層原始戶型圖 這個房子的建筑面積有150方,算是比較大的,但因為是loft結構,所以分攤到每層只有七十多平米,再加上主人對房間數量的要求還是比較多的,所以每塊功能區能分到的空間都不大。優勢就是戶型比較方正,采光也不錯。 ▲一層平面設計圖 ▲二層平面設計圖 設計改動:我們盡量利用了陽臺以及設備平臺等贈送面積來提升空間的利用率。長輩房和客廳的陽臺都包進,二層主臥和兒臥也都把陽臺做了充分利用,兒臥設置衣帽間和書房空間,主臥則利用陽臺設置了化妝區和休閑區。 客廳 / Living Room 低飽和度白色配奶茶色的客廳空間,以留白呈現高階質感。兩側立面都做了簡單造型,懸浮與局部疊搭的形式保留整體的簡潔大氣,又強化了立體感。 入戶看向客廳的視角。溫和燈光全面包裹著白凈的空間,調和出一幅慵懶、愜意的生活畫卷。 沙發背景墻用塊面疊搭出簡約造型,豐富層次?;⌒蔚慕Y構更加柔和,在淺淺的光暈之下好像浮了起來,溫溫柔柔的讓人喜愛。 可可愛愛柯基犬為我們友情出了個鏡~家會因為那些我們所喜愛的事物煥發出灼熱的光彩,是所有外在裝飾都無法替代的。 電視的白墻背景在底部留出距離,木作的電視柜同樣懸空,讓視覺輕盈無壓。 餐廳 / Dining Room 餐廳位于客廳和樓梯區域之間,布局緊湊。留白背景保持明凈簡約,從容奏響幸福生活的旋律篇章。 當外在的浮華喧囂褪去,剩下的就是歸屬于心靈的安寧。當家真正成為了一處避風港,居住在其中即可以變得松弛而隨性,那么空間自然也不需要多么精心浮夸的裝扮了。 從樓梯看向餐廳的視角,地毯上的幾何色塊一同入框,結構線條自上而下循序排布著,質感美學展露無余。 樓梯 / Stairs 樓梯加入踏步燈和木質扶手,保證老人行動安全。樸素的形態包容純粹,原木材質傳達安穩、平和的情緒。 臥室 / Bedroom 主臥形色簡潔自然,撲面而來的都是放松和舒適。室內陽臺設計落地窗,空間因光與景生韻,恰到好處地擊中了人們對生活的美好期待。 次臥延續溫潤的木質感,充分詮釋自然主義的隨性和自在。懸空式床頭柜連接立面書柜一體打造,讓視覺絲滑流暢,也豐富了居住形態。 衛生間 / Bathroom 一些鮮亮的顏色有助于打破常規,喚醒活力,就像平淡生活中也要有不可或缺的激情,讓我們可以擁抱希望,堅定地朝著夢想追逐。

























免費
免費申請戶型規劃
專屬設計師免費1對1全程服務
已經有3777人申請
24小時免費咨詢電話
400-8800-618
你家預算
108080元