
西溪公館 | 品茶聞香,靜觀自在

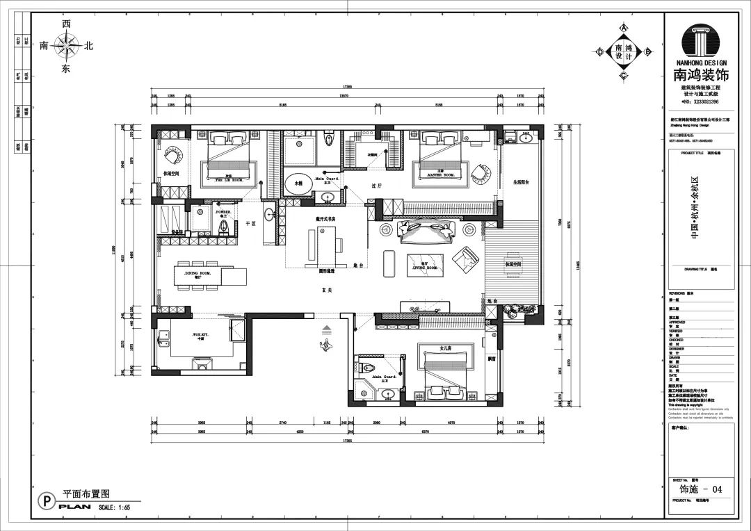
項目信息 / 地址:西溪公館 城市:中國 杭州 戶型:四室兩廳 面積:188㎡ 風格:新中式 設計施工:浙江南鴻裝飾 · 作品前言 本案常住一家三口,主人事業成功,平時喜歡喝茶,愛好書法,屬于是書香氣質比較濃厚的門第之戶。 室內地面使用素感灰色大理石,頂面留白加上實木線條套深黑棕色,墻面以淡米色墻布和中式風格硬包結合,局部有黑棕色木飾面點綴,柜門用定制復合實木并內嵌金屬線條,魚肚白巖板電視背景墻更顯大氣,整體營造典雅的家居氛圍。 設計師有話說: 這個家的業主我印象很深刻,因為剛開始動工的時候,男主人就非常緊張,擔心最后的樣子會跟效果圖相差很大。后來慢慢的水電、木工、泥工、油漆等工序依次完成,等到軟裝進場,男主人才總算松了口氣,對最終的效果表示非常滿意。 裝修是一條漫漫長路,牽涉到的事項那么多踩坑比較難避免,但是業主既然選擇了我們,把信任托付給我們,我們也不會辜負他們的期待,會盡可能把他們心目中的家最理想的樣子給還原出來,最后得到業主的親口好評,我覺得在項目跟進中付出的所有辛苦都是值得的了。 · 戶型設計分析 -原始戶型圖 優點:大平層,結構方正,南北方正,有超大面寬的陽臺。 缺點:戶內彎繞較多,動靜區混雜,主臥私密性差,衛生間有暗衛。 -平面設計圖 設計說明: ①玄關處拆除原有墻體,做了一個中式鏤空圓景,背后是一個半敞開的禪意書房。 ②客廳陽臺做地臺設計,增加趣味感和休閑性。 ③女兒房做了一個落地玻璃的衛生間,引入自然光,解決暗衛問題。 ④主臥設計獨立衣帽間,擴充衛浴面積,留出獨立木桶的位置。 Hallway 玄 關 門廳與書房的隔墻鏤空做中式圓景 空間內外彼此獨立又相互流動 幽然如畫,靜中生趣 Living Room 客 廳 空間以現代手法構筑雅致的東方美學 軟硬裝的方正線條創造一種序列感 木體黑棕的顏色為其定下沉穩基調 背景墻則借遠山飛雁靈鹿等意象 將自然的靈犀納引入室 客廳將陽臺包進打造地臺做休閑區 靜享遠離都市喧囂的閑暇時光 Study 書 房 圓景與屏風隔斷 無形劃定書房區域 在此煮茶、品香 雖無絲竹管弦之盛 亦足以暢敘幽情 Kitchen 廚 房 空間以簡素的白和溫潤的木結合 合理的動線規劃能讓廚房使用體驗更加舒適 Dining Room 餐 廳 自然的木飾延續沉穩典雅的姿態 明亮的光線給予餐廳最大的適意 柜面的金屬線條豐富層次 印刻民族特有的禮序之道 Bedroom 臥 室 主臥的面貌是靜雅而溫柔的 器物不喧、靈動自在 伴隨光影投入 散發著恰到好處的溫度 女兒房則更偏簡約的調性 飄窗臺、收納龕和書桌一體成型 兼顧工作學習和休閑的雙重屬性 充分利用了空間 Bathroom 衛 生 間





















免費
免費申請戶型規劃
專屬設計師免費1對1全程服務
已經有3777人申請
24小時免費咨詢電話
400-8800-618
你家預算
108080元