
【申花壹號院】170㎡混搭躍層,湖水綠點綴情調,滿載靈動清新!
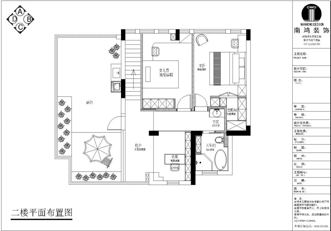
項目信息 / 地址:申花壹號院 城市:中國 杭州 戶型:頂躍 面積:170㎡ 風格:混搭風格 設計施工:浙江南鴻裝飾 家就好像是我們的“生活避難所”,無論遇到再大的煩惱、再多的挫折,歸家的那一刻,我們就可以擺脫種種不安的情緒,回歸到一種隨心所欲、安然自在的狀態。 所有好的家裝設計都是要為屋主人“量身定做”,當家集合了人所熟悉、喜愛的一切時,生活在其中,再普通的日子也會變得明媚動人。 本期的男業主從事工程類工作,夫妻二人平時都事務繁忙,經常要出差,所以家的“避難所”屬性對他們而言至關重要。現代風的黑白灰雖是簡約耐看,但他們更想要家有多一點的色彩,如業主自己所言,希望這個家可以變成“快節奏生活中那個不一樣的煙火”,為他們帶去喜悅和安心。 本案糅合北歐、現代、小美幾種風格,以湖水綠和灰、白顏色為主基調,加入巖板、木材、絨布、皮藝、布藝等豐富材料,用剛直、柔和搭配的線條筆法,為業主抒寫慢調生活之詩。 #戶型設計 案/例/詳/解 客廳 Living Room 客廳是一個高互動感空間,融入起居、會客、彈琴等多種情景。墻面鋪設白色巖板,湖水綠的柜子都是統一定制,為居室建立起穩妥而優雅的秩序。 三人位的灰色皮藝沙發低調耐看,空間內沒有過多跳躍的色彩或符號,帶給人的情緒是平靜而舒緩的。 餐廳 Dining Room 餐廳區域順樓梯做出餐邊柜的背景,家電嵌入其中,極大提升了空間利用率,明亮的光也在默默柔和著這個自在用餐地。 深淺不同的灰構出簡單層次,現代風餐桌椅、幾何線吊燈彰顯簡約設計的魅力,柔軟的弧線調和空間結構,襯托出雅致而溫馨的家庭用餐氛圍。 臥室 Bedroom 主臥的配色與全屋統一,松軟材質營造舒適的睡眠感,床頭配備成品的白色桌椅與儲物柜子,保證室內的整潔度。 客房是一個更加溫和而有歲月感的簡約空間,米色墻面,胡桃木材質床體,配備地臺,素樸、清透且自然的感覺撲面而來。 書房 Study 書房是地臺臥室與辦公場所“雙修模式”的設計,統一的原木打造樸素氛圍,在光線的暈染下更加凸顯自然的韻味。 廚衛空間 Kitchen & Bathroom 白與灰、綠結合的中廚空間敞亮明凈,豐富的儲物櫥柜讓廚余收納輕輕松松。 衛生間使用清新的小白磚,黑白分明的線條帶來爽快的視感,空間面積雖不富裕,整體排布卻是井井有條,必要功能絲毫不落。 露臺 Balcony 從露臺位置看向過道。場域以瓷磚和地板做區分,盡頭處是二樓衛生間的干區,玻璃的融入讓光線在空間中的流轉更加自如。 “將自然和光被恰當的引入進來,平凡的屋子也就有了生命力。”房子得天獨厚的光照優勢自然不能白白浪費,居室內部設計出了休閑閱讀區,視線往外延伸至露臺,大面的窗戶模糊內外界限,百葉簾可以自由調節光線,給予人與自然更多的趣味互動體驗。 等一個周末,邀上三五好友,烤烤肉、喝喝酒,談一番人生,又是何等暢快與灑脫~





























上一篇:盛元慧谷 | 松花釀酒,春水煎茶
免費
免費申請戶型規劃
專屬設計師免費1對1全程服務
已經有3777人申請
24小時免費咨詢電話
400-8800-618
你家預算
108080元